Plaines du Loup
Logements subventionnés et PPE
Pièce urbaine D, Plaines-du-Loup, Lausanne
Projektwettbewerb 2019
Grundriss Erdgeschoss
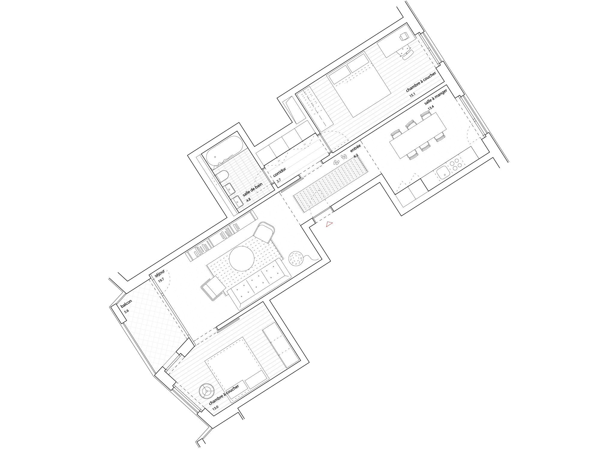
Grundriss Regelgeschoss
Grundriss Regelgeschoss
Logements subventionnés et PPE
Pièce urbaine D, Plaines-du-Loup, Lausanne
Projektwettbewerb 2019
Grundriss Erdgeschoss
Grundriss Regelgeschoss
Grundriss Regelgeschoss